Masters of Architecture

Xorlanyo Avevor

COMMUNITY PEDAGOGY

[Proverb] Bunyoro, Uganda
“Omwana takulila nju emoi”
It takes a village to raise a child

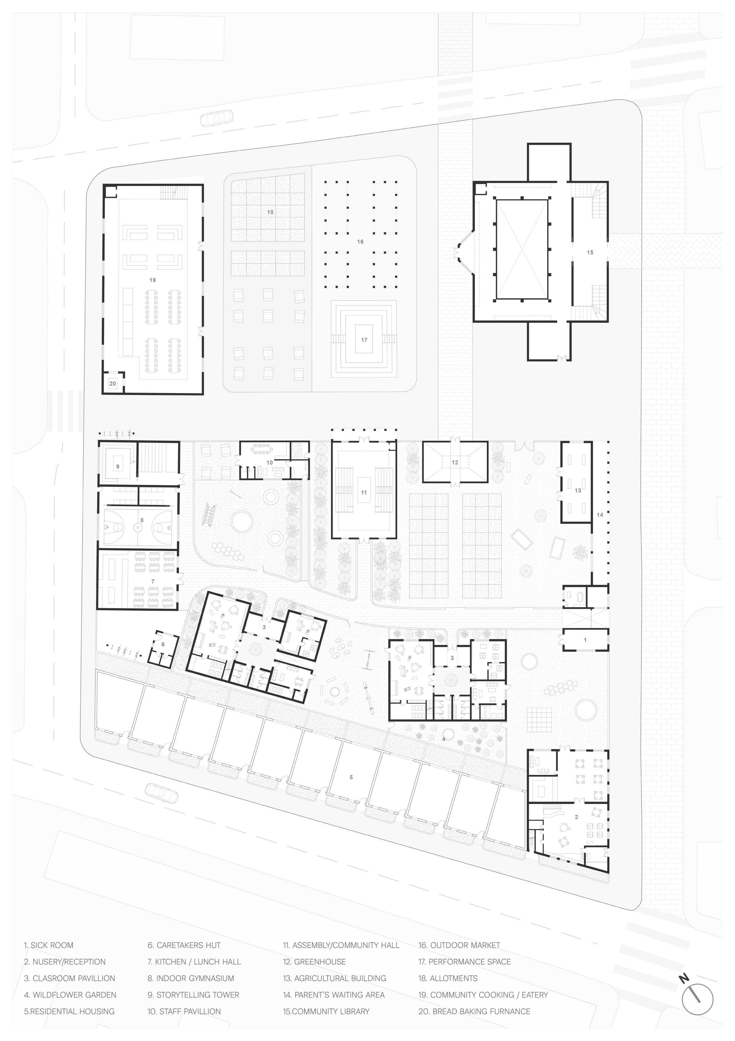
Using the Calton area of Glasgow as a testing ground, this thesis speculates as to whether education can take a more symbiotic approach to its environment; whereby the community can learn for the pupils and the pupils can learn from the community.

Kyle Clarke View All Students Isa Alfayez
Cookie Policy Privacy Policy